Full property description

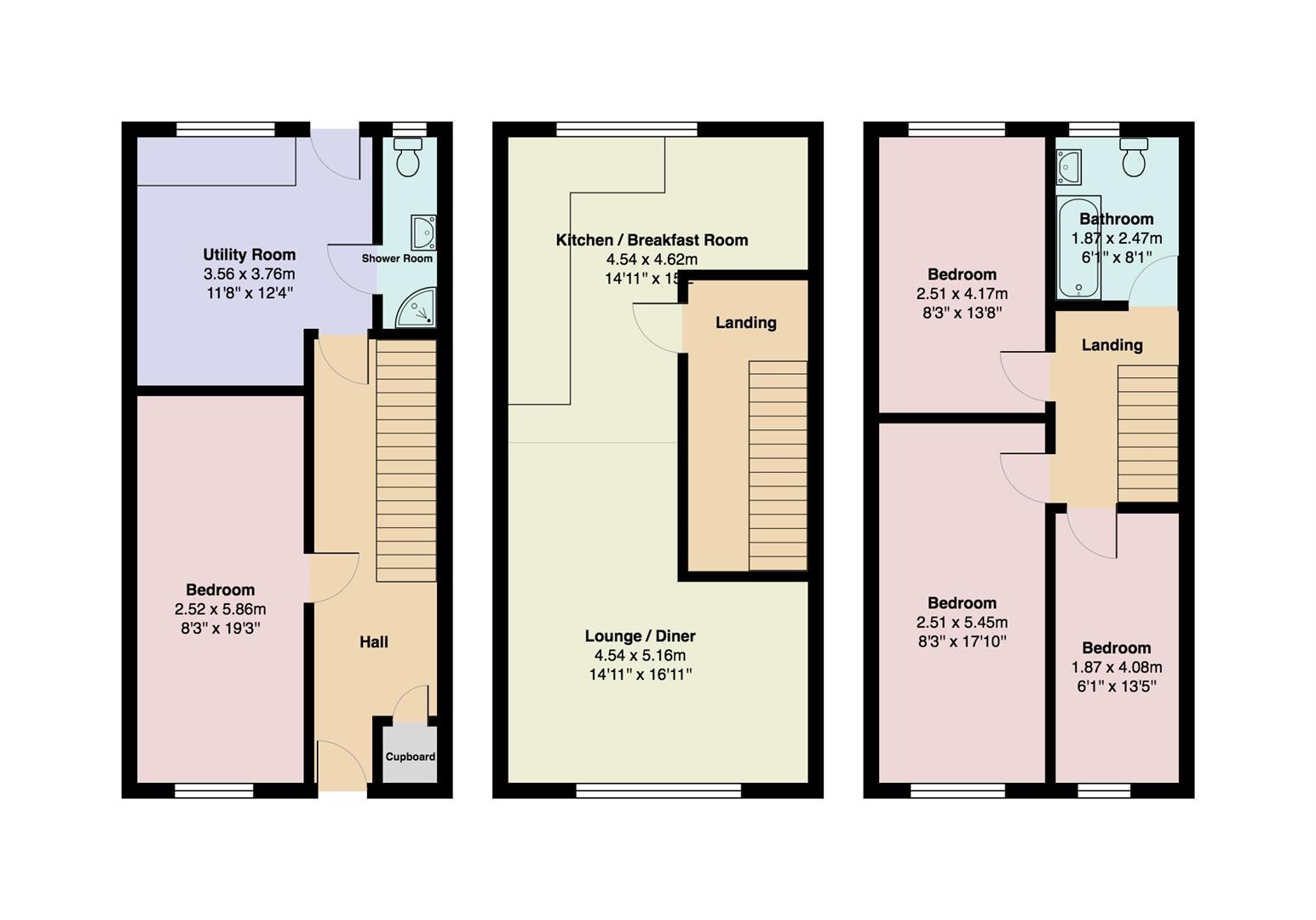
A versatile, spacious home at over 1500 square feet situated in the popular Westgate area of Morecambe. With the accommodation set over three floors, with four well proportioned bedrooms, large open plan living space, a shower room and a separate bathroom plus parking for two cars and a rear garden it would suit either a large or growing family or a multi generational living set up. Offered for sale with no onward chain. Read on for more information.

Download Brochure

Get in touch

Location Pin icon

Houseclub Estate Agency
746 Cameron House
White Cross
Lancaster
LA1 4XF

Watsapp icon

01524 771888

Email icon

info@houseclub.co.uk

Virtual Tour

98 Hampsfell Drive, Morecambe EPC Rating